Tijdelijk parkeren in de Kasteeltuin

Van onze redactie
3 november 2015
Het college van burgemeester en wethouders heeft dinsdag 3 november besloten een tijdelijke parkeervoorziening in de Kasteeltuin aan te leggen. Deze vangt het tekort aan parkeerplaatsen aan de zuidzijde van het station op wanneer daar de parkeergarage wordt gebouwd. De Kasteeltuin wordt alleen gedurende de bouw van de parkeergarage als parkeerplaats gebruikt.

Waarom tijdelijk parkeren in de Kasteeltuin?
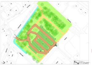
Bij de bouw van de garage verdwijnen de 110 parkeerplaatsen die nu aan de zuidzijde van het station liggen. De gemeente heeft gezocht naar een alternatieve locatie waar reizigers hun auto kwijt kunnen. Want ze wil voorkomen dat reizigers in de omliggende woonwijken parkeren. Uit verschillende varianten is gekozen voor de Kasteeltuin als tijdelijke parkeerplaats. Er is voor de Kasteeltuin gekozen omdat deze genoeg plaats biedt aan ongeveer 130 auto's en omdat het dicht bij het station is. Evenementen, zoals de Kasteelfeesten en de Kunstmarkt, kunnen gewoon doorgaan.

Wanneer gaat het tijdelijk parkeren in?
Vlak voordat begonnen wordt met de bouw van de parkeergarage richten wij de Kasteeltuin als parkeerplaats in. Wanneer dat precies is, is nog niet bekend. Dat is afhankelijk van de onteigeningsprocedure die voor de cafetaria loopt. Zodra de garage klaar is, wordt de tijdelijke parkeerplaats ook weer opgeheven. Verwacht wordt dat er ongeveer anderhalf jaar gebruik gemaakt wordt van de parkeerplaats in de Kasteeltuin. De ondergrond die voor deze parkeervoorziening wordt aangelegd, wordt later gebruikt voor de uitvoering van het plan ‘Toekomst Kasteeltuin’.

Plan 'Toekomst Kasteeltuin'
Vorig jaar is de gemeente met bewoners en de organisaties die evenementen in de Kasteeltuin organiseren, gaan kijken naar de toekomst van de Kasteeltuin. De realisatie van deze plannen is nu uitgesteld. Zodra de parkeergarage klaar is, wordt meteen begonnen met de uitvoering van het plan 'Toekomst Kasteeltuin'.

tijdelijk parkeren Kasteeltuin

Dit bericht delen:

Advertenties